Quadrilocale in vendita

Catanzaro, Via fratelli plutino
€ 129.000
4 locali 4 locali
126 Mq 126 Mq
2 bagni 2 bagni

Quadrilocale in vendita

Catanzaro, Via fratelli plutino

Descrizione annuncio

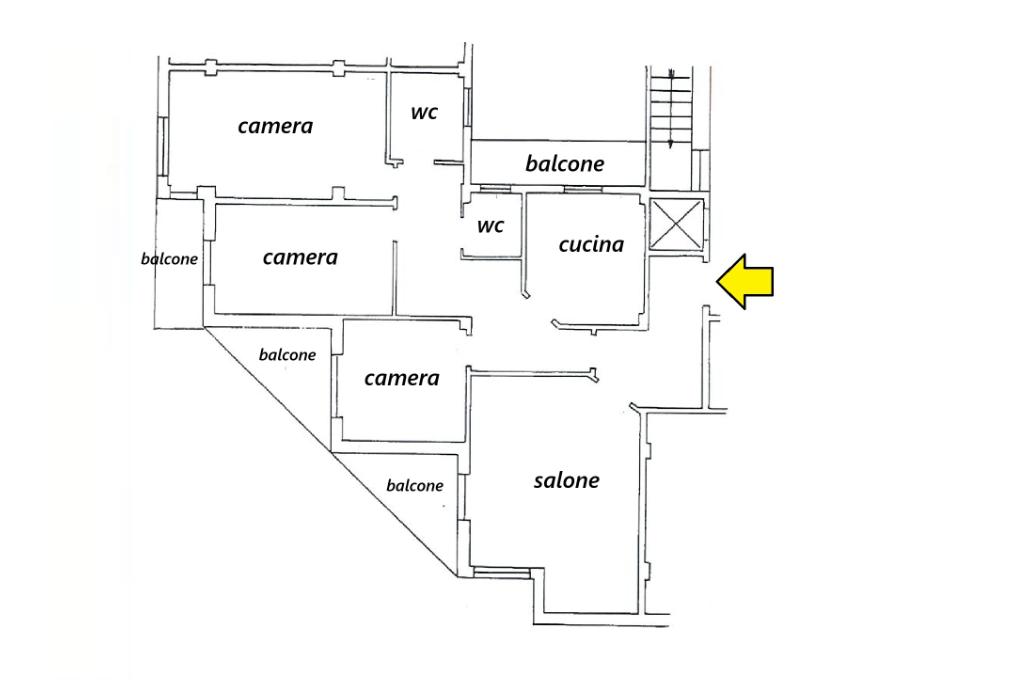
In una zona tranquilla e riservata, all’interno di uno stabile privato servito da doppio ascensore, proponiamo in vendita un appartamento che coniuga spazio, luminosità e potenzialità in ogni suo ambiente. Situato al quarto piano, questo immobile di 128 mq rappresenta una soluzione abitativa ideale per chi desidera vivere in ambienti ampi e confortevoli, godendo al contempo di una splendida vista panoramica e di una posizione ben collegata ai principali servizi cittadini.

L’ingresso, spazioso e accogliente, conduce in una cucina abitabile perfetta per la vita quotidiana e per i momenti in famiglia. Il salone, ampio e ben illuminato, si presta a diventare il cuore pulsante della casa, un ambiente dove ricevere gli ospiti o semplicemente rilassarsi a fine giornata. Le tre camere da letto, tutte di generose dimensioni, offrono spazio sufficiente per una famiglia numerosa o per chi ha bisogno di ambienti da destinare a studio, hobby o ospitalità.

I due bagni completano la zona notte: uno di essi è stato recentemente ristrutturato, mentre l’altro mantiene le sue caratteristiche originali, ma ben tenute. L’intero appartamento si presenta infatti allo stato originale, offrendo all’acquirente la possibilità di personalizzare gli spazi secondo i propri gusti e le proprie esigenze. Un plus da non sottovalutare è la presenza di climatizzatori e di una caldaia nuova, che garantiscono comfort e funzionalità sin da subito.

A rendere ancora più interessante questa proposta sono i tre balconi che abbracciano la casa, regalando scorci aperti e una piacevole sensazione di ariosità. L’esposizione favorevole assicura luce naturale in ogni ambiente, rendendo ogni stanza calda e accogliente durante tutto l’arco della giornata.

Un appartamento che ha tanto da offrire: metratura generosa, vista aperta, luce, comfort e un grande potenziale da valorizzare. Perfetto per chi desidera una casa da vivere pienamente, con ampi margini di personalizzazione

Mostra tutto

Nelle vicinanze

Trasporto pubblico Trasporto pubblico
Catanzaro Città
Catanzaro Città
660 m
Catanzaro Pratica
Catanzaro Pratica
1,0 Km
Catanzaro Piazza Matteotti
Catanzaro Piazza Matteotti
760 m
Piazza Roma
Piazza Roma
1,8 Km
Ricariche auto elettriche Ricariche auto elettriche
Catanzaro Pugliese | EnelX
510 m
Catanzaro Pio X | EnelX
540 m
Catanzaro Piave | EnelX
590 m
Catanzaro Cantafio | EnelX
640 m
Catanzaro Carlo V | EnelX
980 m
Scuole Scuole
Liceo Classico "P.Galluppi"
450 m
Scuole
510 m
Scuole
1,5 Km
Accademia di Belle Arti di Catanzaro
1,7 Km
Scuola Media Statale "Bruno Chimirri"
2,0 Km
Farmacia Farmacia
Farmacia Europea
650 m
Farmacia Sestito
790 m
Parafarmacia Conad
1,2 Km
Ospedali Ospedali
Ospedale Pugliese Ciaccio
520 m
Ospedali
1,1 Km
Sant'Anna Hospital
1,2 Km
Supermercati Supermercati
Carrefour Market
850 m
Conad
1,2 Km
COOP 3.0
1,6 Km
Supermercato CRAI
1,9 Km
Supermercati
2,0 Km
Negozi Negozi
panificio gallo
790 m
Upim
1,5 Km
Bar Bar
Bar
410 m
Garden
570 m
Vino
1,5 Km
Ristoranti Ristoranti
Da Ciro
810 m
Ristorantino Da Zia Antonietta
1,2 Km
Alice Pizzeria Tavola Calda
1,7 Km
Bacchus
2,0 Km
La Vecchia Tramvia
2,7 Km
Mostra tutto

Caratteristiche

Rif.:
61104804
Piano:
4 di 7 con ascensore (Piano alto)
Balconi:
3
Camere da letto:
3
Arredamento:
Assente
Condizionamento:
Autonomo
Mostra tutto
Prezzo Prezzo
€ 129.000
Rata mutuo Rata mutuo
€ 609 / mese
Spese annue Spese annue
€ 600
Proponi il tuo prezzoProponi il tuo prezzo

Classe Energetica

E
E
E
E
E
E
E
E
E
EP globale non rinnovabile:
1.00 kW h/m² anno
EP globale rinnovabile:
1.00 kW h/m² anno
EP invernale del fabbricato:
EP estiva del fabbricato:
Anno di costruzione:
1960
Riscaldamento:
Autonomo
Tipo impianto:
A radiatori
Tipo alimentazione:
Metano

Ti interessa visionare l'immobile?

Fissa un appuntamento  Fissa un appuntamento

Richiedi informazioni

Clicca su Leggi per aprire l'informativa
* Questi campi sono obbligatori

Calcola il tuo mutuo

Semplice e senza impegno
Anticipo

( % )
Mutuo

( % )

pochi semplici passi

inserisci i tuoi dati
Questionario completato
Grazie per aver richiesto un appuntamento senza impegno con un nostro Consulente del Credito e Assicurativo.

Hai inserito correttamente tutti i dati necessari e a breve riceverai una e-mail con un link da convalidare per inviare i tuoi dati.
Affiliato
Studio Catanzaro Nord Sas
Via G. Schipani, 134 88100 Catanzaro (CZ)

Il nostro staff


  • Andrea Barbuto
    Affiliato

  • Nicola Danieli
    Responsabile

  • Valentina Fera
    Coordinatrice
Via G. Schipani, 134 88100 Catanzaro (CZ)
Zona: Catanzaro
Mostra su mappa
Orari: dal lunedi al venerdi 09:00 - 13:00 / 15:00 - 19:30 ; sabato 9:00 - 13:00
Affiliato
Studio Catanzaro Nord Sas
Via G. Schipani, 134 88100 Catanzaro (CZ)

2025 Tecnocasa Franchising S.p.A. - P. IVA 08365160152 - Via Monte Bianco 60/A 20089 Rozzano (MI). Ogni agenzia ha un proprio titolare ed è autonoma. Privacy policy | Policy utilizzo | Cookie policy