Box / posti auto in vendita

Catanzaro, Via fratelli bandiera
€ 49.000
2 locali 2 locali
84 Mq 84 Mq
1 bagno 1 bagno

Box / posti auto in vendita

Catanzaro, Via fratelli bandiera

Descrizione annuncio

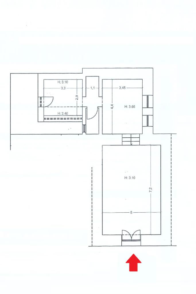
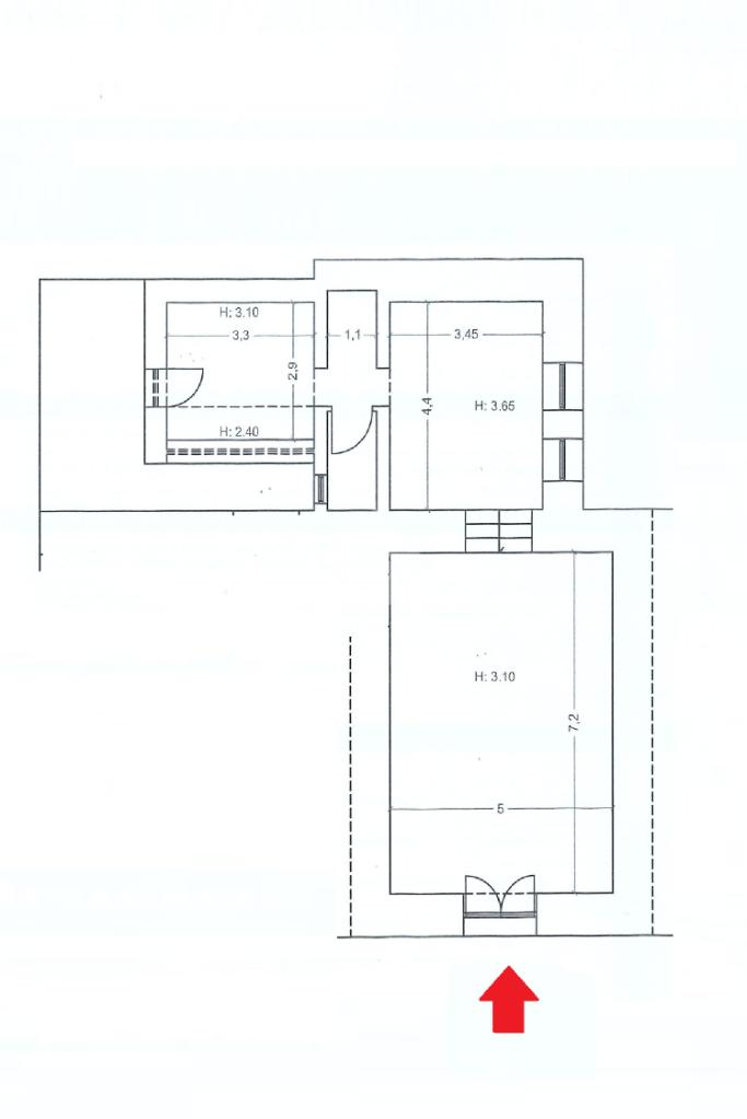
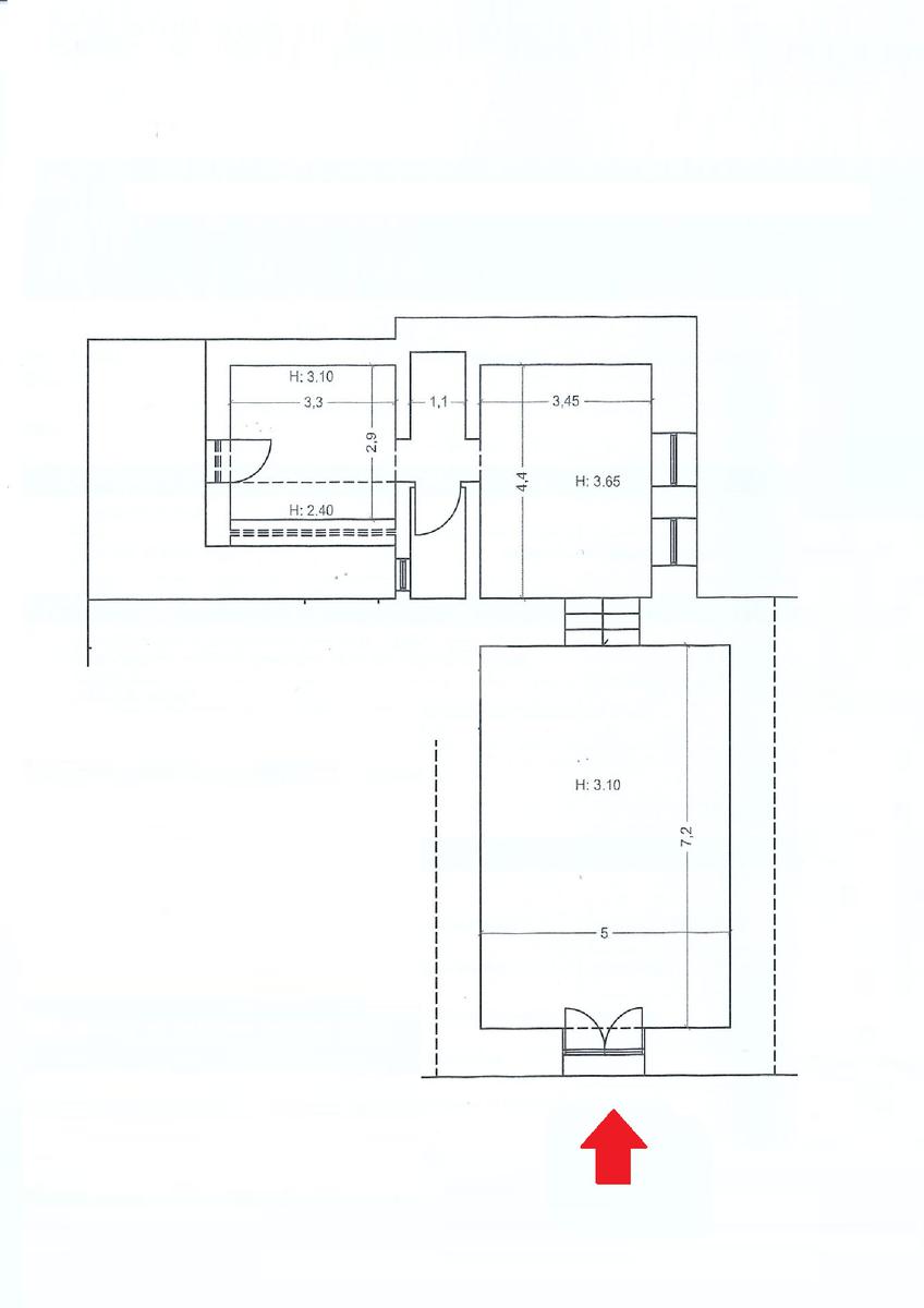
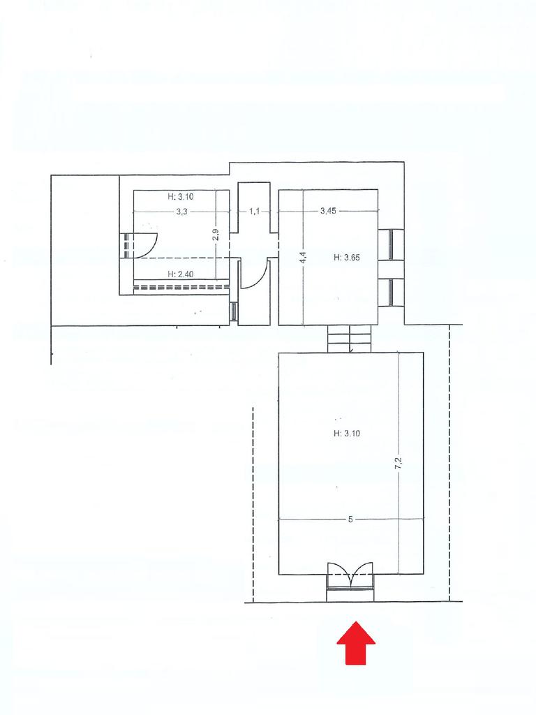
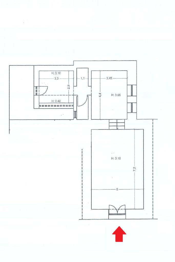
Zona Stadio, in Piazza Fratelli Bandiera, proponiamo in vendita un immobile commerciale categoria C1, ideale per chi è alla ricerca di uno spazio in una posizione strategica e ad altissimo passaggio cittadino.

L’immobile si trova al piano terra e si compone di due/tre ambienti, oltre a un bagno. Gli interni necessitano di una completa ristrutturazione, caratteristica che rappresenta un valore aggiunto per chi desidera personalizzare ogni dettaglio e modellare gli spazi in base alle proprie esigenze professionali.

La posizione, la visibilità e la flessibilità degli ambienti rendono questa soluzione perfetta per qualsiasi tipo di attività commerciale, studio professionale o piccolo punto vendita. Un’occasione unica per investire in una delle aree più dinamiche e trafficate della città.

Per ulteriori informazioni o per fissare una visita, siamo a disposizione.

Mostra tutto

Nelle vicinanze

Trasporto pubblico Trasporto pubblico
Catanzaro Città
Catanzaro Città
520 m
Catanzaro Pratica
Catanzaro Pratica
960 m
Catanzaro Piazza Matteotti
Catanzaro Piazza Matteotti
710 m
Piazza Roma
Piazza Roma
1,8 Km
Ricariche auto elettriche Ricariche auto elettriche
Catanzaro Cantafio | EnelX
470 m
Catanzaro Pugliese | EnelX
470 m
Catanzaro Pio X | EnelX
480 m
Catanzaro Piave | EnelX
480 m
Catanzaro Carlo V | EnelX
910 m
Scuole Scuole
Liceo Classico "P.Galluppi"
410 m
Scuole
440 m
Scuole
1,4 Km
Accademia di Belle Arti di Catanzaro
1,7 Km
Scuola Media Statale "Bruno Chimirri"
2,0 Km
Farmacia Farmacia
Farmacia Europea
530 m
Farmacia Sestito
710 m
Parafarmacia Conad
1,2 Km
Ospedali Ospedali
Ospedale Pugliese Ciaccio
420 m
Ospedali
1,0 Km
Sant'Anna Hospital
1,2 Km
Supermercati Supermercati
Carrefour Market
800 m
Conad
1,2 Km
COOP 3.0
1,5 Km
Supermercati
1,8 Km
Supermercato CRAI
2,0 Km
Negozi Negozi
panificio gallo
700 m
Upim
1,4 Km
Bar Bar
Bar
350 m
Garden
410 m
Vino
1,4 Km
Ristoranti Ristoranti
Da Ciro
710 m
Ristorantino Da Zia Antonietta
1,2 Km
Alice Pizzeria Tavola Calda
1,6 Km
Bacchus
2,0 Km
La Vecchia Tramvia
2,6 Km
Mostra tutto

Caratteristiche

Rif.:
61147750
Piano:
1 di 3 (Piano terra)
Arredamento:
Assente
Condizionamento:
Assente
Ascensore:
No
Riscaldamento:
Autonomo
Mostra tutto
Prezzo Prezzo
€ 49.000
Rata mutuo Rata mutuo
€ 231 / mese
Spese annue Spese annue
€ 1
Proponi il tuo prezzoProponi il tuo prezzo

Classe Energetica

F
F
F
F
F
F
F
F
F
EP globale non rinnovabile:
1.00 kW h/m² anno
EP globale rinnovabile:
1.00 kW h/m² anno
EP invernale del fabbricato:
EP estiva del fabbricato:
Anno di costruzione:
1960
Riscaldamento:
Autonomo
Tipo impianto:
A radiatori
Tipo alimentazione:
Metano

Ti interessa visionare l'immobile?

Fissa un appuntamento  Fissa un appuntamento

Richiedi informazioni

Clicca su Leggi per aprire l'informativa
* Questi campi sono obbligatori

Calcola il tuo mutuo

Semplice e senza impegno
Anticipo

( % )
Mutuo

( % )

pochi semplici passi

inserisci i tuoi dati
Questionario completato
Grazie per aver richiesto un appuntamento senza impegno con un nostro Consulente del Credito e Assicurativo.

Hai inserito correttamente tutti i dati necessari e a breve riceverai una e-mail con un link da convalidare per inviare i tuoi dati.
Affiliato
Studio Catanzaro Nord Sas
Via G. Schipani, 134 88100 Catanzaro (CZ)

Il nostro staff


  • Andrea Barbuto
    Affiliato

  • Nicola Danieli
    Responsabile

  • Valentina Fera
    Coordinatrice
Via G. Schipani, 134 88100 Catanzaro (CZ)
Zona: Catanzaro
Mostra su mappa
Orari: dal lunedi al venerdi 09:00 - 13:00 / 15:00 - 19:30 ; sabato 9:00 - 13:00
Affiliato
Studio Catanzaro Nord Sas
Via G. Schipani, 134 88100 Catanzaro (CZ)

2025 Tecnocasa Franchising S.p.A. - P. IVA 08365160152 - Via Monte Bianco 60/A 20089 Rozzano (MI). Ogni agenzia ha un proprio titolare ed è autonoma. Privacy policy | Policy utilizzo | Cookie policy